
Artistic Rendering
2509 Pine Brook Drive
Kirksville, MO 63501
UNDER CONSTRUCTION!!!
This home is currently under construction with an estimated completion date of February 2026. Start the new year in a new home!
Located in the Pine Brook Subdivision in Kirksville, Missouri. This neighborhood is very quiet but perfectly located near Kirksville R-3 Schools, the YMCA and Kirksville Country Club. It's about as close to a country feel as you can obtain while still being inside Kirksville City Limits. One of the last few lots available in this nearly completed subdivision.
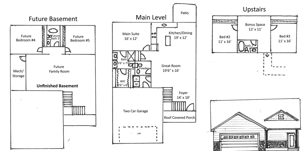
This plan is designed with comfort and functionality in mind. Don't let the square footage fool you. Every detail has been thought out to maximize the usability of the entire space.
The main level boasts an open main living area from the great room through the dining and kitchen out to a secluded back patio. A built-in fireplace will keep you cozy throughout the year. Decorative tray ceilings elevate the space.
This kitchen checks all the boxes. Storage, functionality and beauty. Stained wood cabinets with many upgrades. Trash base cabinet, roll-out trays, many drawers, crown moulding, undercabinet trim and extra tall upper cabinets just to name a few. Large pantry with butcher block tops. Window to the back patio allowing natural light. Eat-at island. Full kitchen appliance suite, including 24" beverage cooler in the island. Tray ceiling. Over 70 sq. ft. of granite countertop. It is an eye catcher.
The main suite is located on the main level with a large bath and oversized walk-in closet. The large bedroom also features varying ceiling heights with a decorative tray ceiling. The laundry is near the main suite for easy access.
Two additional bedrooms share a bath on the main level. Each large bedroom has custom shelving in the closets.
The basement is mostly finished and includes a full bathroom and two additional bedrooms. Walking down the stairs, you have a family room as well as a flex space, which you can use to suit your needs. You can have a designated play area, game room, hobby center, gym or another family room in the large flex space. Don't forget about the added storage space in the unfinished areas.
This home is just over 3,000 square feet of finished living space. 5 bedroom. 3 bathrooms. Full laundry. 2-Car garage deep enough and with a door tall enough for full size pickup.
Construction will be complete early Q1 2026.
Great Room during trim phase, tray ceiling beams, fan installed.